SNS
インスタグラム・X始めました♪
フォローよろしくお願いします!




⚠ 重要なお知らせ
野洲文化小劇場の利用について
文化施設集約化の方針により野洲文化小劇場は解体工事等を行うため、令和8年4月から休館することをお知らせしていました。
しかしながら、今後、文化ホールのあり方および野洲駅前の活性化について検討を進めることから、令和9年度末(令和10年3月末)までを目途として文化小劇場はこれまでとおり開館します。
このため令和8年4月以降の貸館の利用受付を下記のとおり利用月毎に順次開始します。
令和8年4月~6月利用分施設予約
令和8年1月29日(木)から開始
※利用日、団体所在地等により受付開始時間が異なります。

EVENTS
イベント・催物情報
文化ホール・小劇場のイベント・教室情報
SCHEDULE
催し物予定表
文化ホール・小劇場の催し物予定
FACILITY
施設案内
施設をご紹介します

🎤 サブ施設
文化小劇場
小規模な発表会やリハーサル、ワークショップなどに最適な多目的スペース。令和8年3月末までご利用いただけます。
👥 収容人数
〜100名程度
⚙️ 用途
発表会・リハーサル
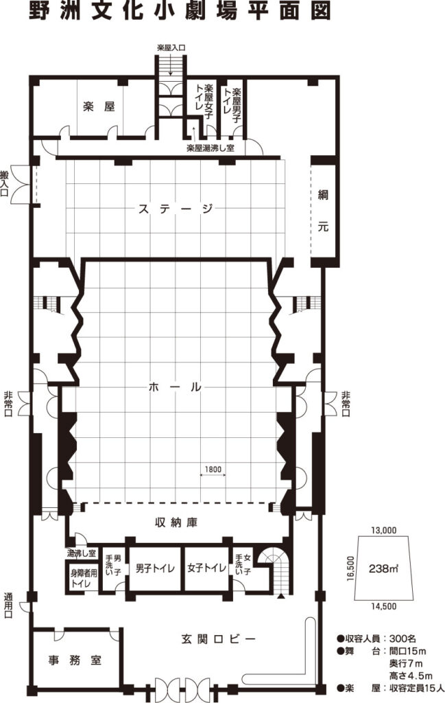
小劇場関連図面
★画像をクリックすると拡大します。


ACCESS
アクセス
施設へのアクセス方法をご案内します
📍 所在地
〒520-2331
滋賀県野洲市小篠原2142
📞 電話番号
📠 FAX
🕐 開館時間・休館日
受付時間:9:00 – 17:00
休館日:月曜日・年末年始
CONTACT
お問い合わせ
お問い合わせはこちらからお願いいたします。